项目名称:精密加工厂恒温恒湿实验室,三坐标实验室
应用行业:精密机械/精密加工/精密模具制造
恒温恒湿实验室客户介绍
广东伊之密精密机械股份有限公司,是专注于“模压成型”专用机械设备的设计、研发、生产、销售及服务的
高新技术企业,以高精度注射成型机、高性能铝镁合金压铸机、高品质橡胶机为主导产品。2015年1月23日
伊之密成功登陆深交所A股市场(股票代码:300415)。
恒温恒湿项目介绍
广东伊之密精密机械股份有限公司,是专注于“模压成型”专用机械设备的设计、研发、生产、销售及服务
的高新技术企业,以高精度注射成型机、高性能铝镁合金压铸机、高品质橡胶机为主导产品。对其生产产品
要求极其严格,其公司恒温恒湿车间,产品计量检测室,三座标实验室(都是恒温恒湿项目)都由我司负责建设施工
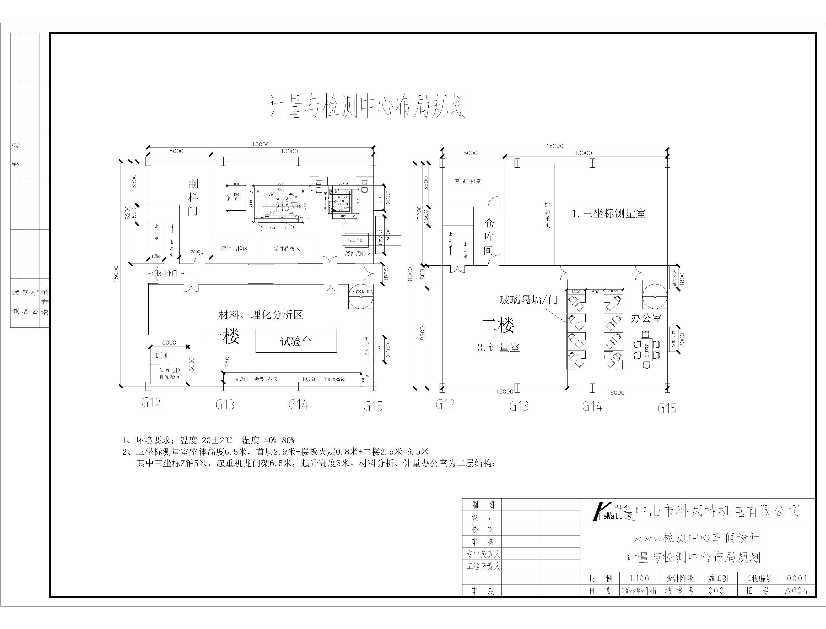
计量检测室和三坐标实验室环境要求:
温度:控制在20℃,精度±2℃,湿度:40-80%RH, 精度要求:正负2%。
恒温恒湿计量检测室布局规划图
恒温恒湿计量检测实验室外景
恒温恒湿计量检测实验室内景

恒温恒湿精密测量室(即三坐标实验室)外景
恒温恒湿精密测量室(即三坐标实验室)内景